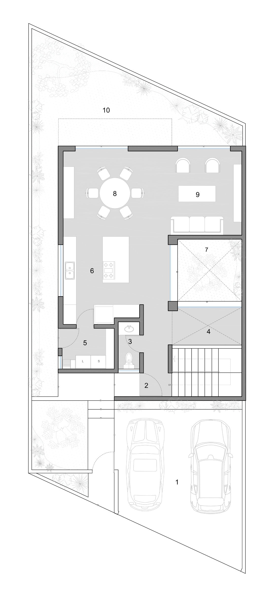
Ground Floor
Social living space that invite the light into every corner.
- Gourmet kitchen & dining
- Double height office
- Central garden
- Laundry room
- Washroom
- Back patio
- Parking for two cars
The architectural layout of MARENA LIVING is conceived as a vertical journey, an elegant progression through three carefully curated levels that balance privacy, openness, and connection to the outdoors. Each floor offers its own atmosphere, allowing residents and guests to experience the home in layers, from welcoming social spaces to intimate private retreats and, finally, to an elevated rooftop sanctuary.
Social living space that invite the light into every corner.
Your private retreat, dedicated entirely to rest and privacy.
Elevated living above The Marina, merging the horizon with your private deck.
A well-proportioned layout integrates interior living areas, rooftop amenities, and outdoor terraces, offering a balanced residential program designed for long-term usability and value.
Interior surface
2,196 sq ft
Rooftop surface
740 sq ft
Decks/Patios surface
787 sq ft
Lot surface
2,153 sq ft
Bedrooms
3
Full bathrooms
3
Washrooms
2
